【谭本立】罗浮宫A-Plus人居设计大奖参赛作品
2026-02-05        来源:华人设计师网        作者:正雨

谭本立 BennyTam
佛山秉哲设计有限公司 | 联合创始人

《融光·境》
-
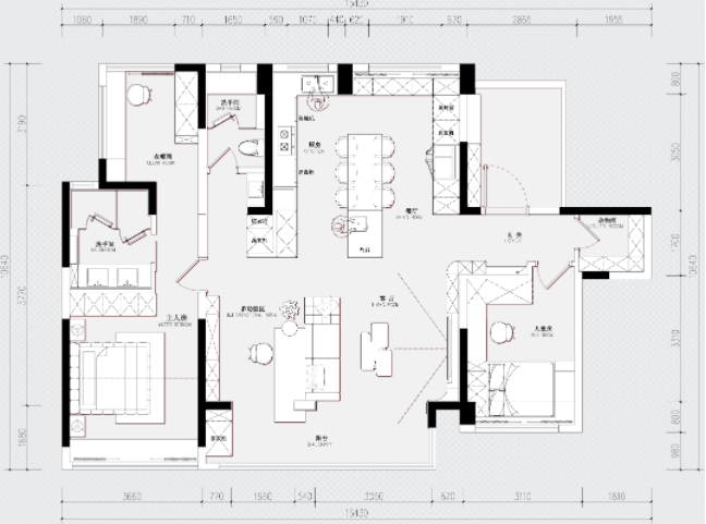
三口之家的LDKB极简生活构解
此住宅设计以意式极简美学为核心理念,通过“四房改两房”的布局重构,
将空间极大程度地释放给家庭互动与精神栖息。
公共区域采用LDKB一体化设计,实现客、餐、厨与阳台的视觉与功能联动。
开放式空间以纯粹线条、中性色彩和自然材质铺陈,营造出宁静通透的基底。
核心设计为融合岛台与餐桌的社交型中岛,既是用餐区,亦是家庭交流中心。
西厨轻食吧台与功能完备的中厨结合,满足多元生活方式。





意大利'藝術设计天才'EOLO TOMASSONI艾欧罗·托玛索尼
意大利"藝術设计天才"EOLO TOMASSONI艾欧罗·托玛索尼...
中国建筑学会室内设计分会(IID-ASC)副理事长
